Experiential
Architectural
About / Contact
Archetype Design Co.
Experiential
Architectural
About / Contact

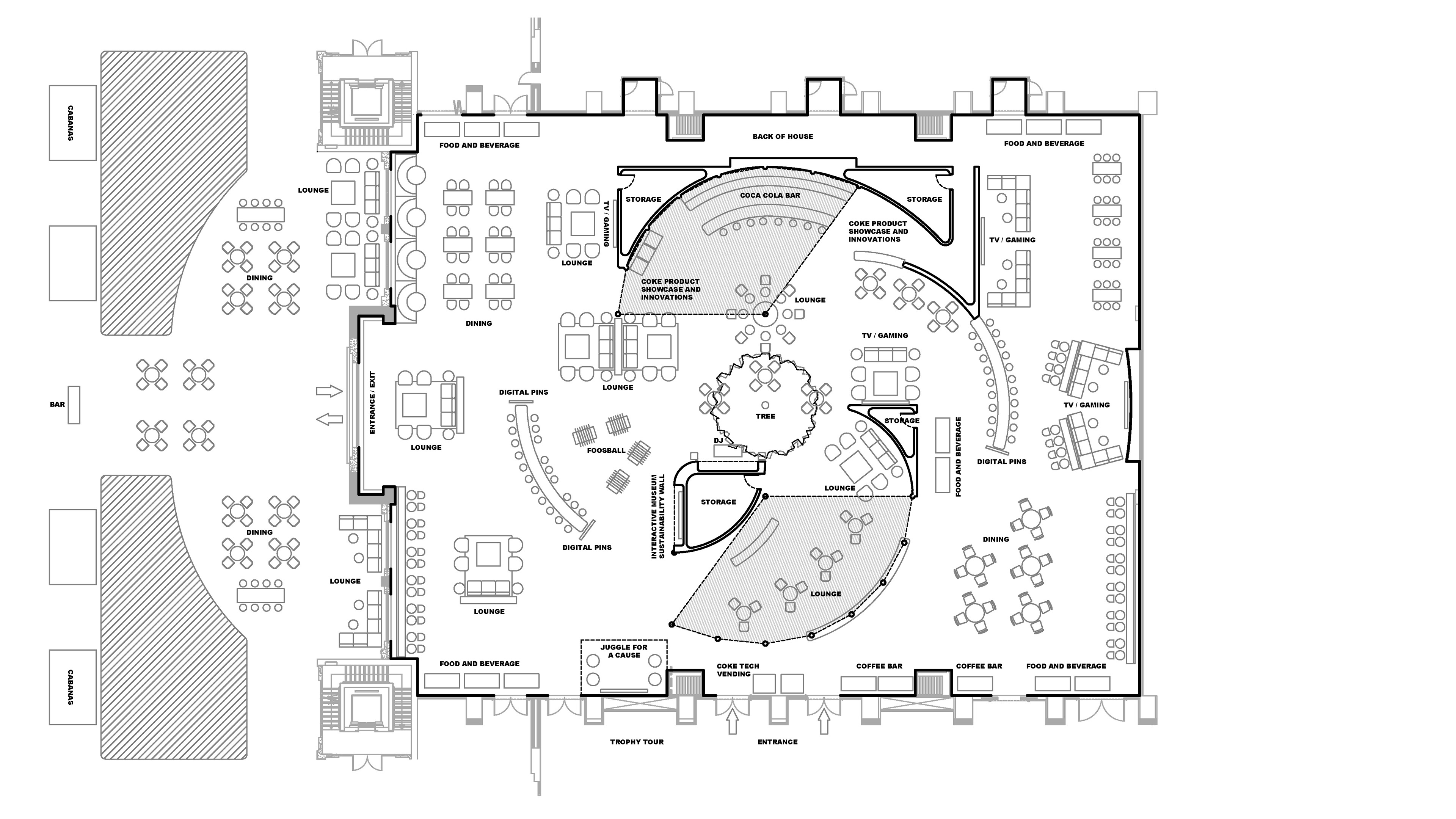
Coca-Cola FIFA 2022 Hospitality

You may also like . . .

Zwilling Mobile Tour
Nikola Motors
Capital One
WynnBet Mobile Tour
Samsung Mobile Tour
Major League Soccer
Dr. Squatch
Konica Minolta Experiential Concept
Lydian Dental Mobile Tour
Indian Motorcycles Dealership Experiential
↑Back to Top