Experiential
Architectural
About / Contact
Archetype Design Co.
Experiential
Architectural
About / Contact

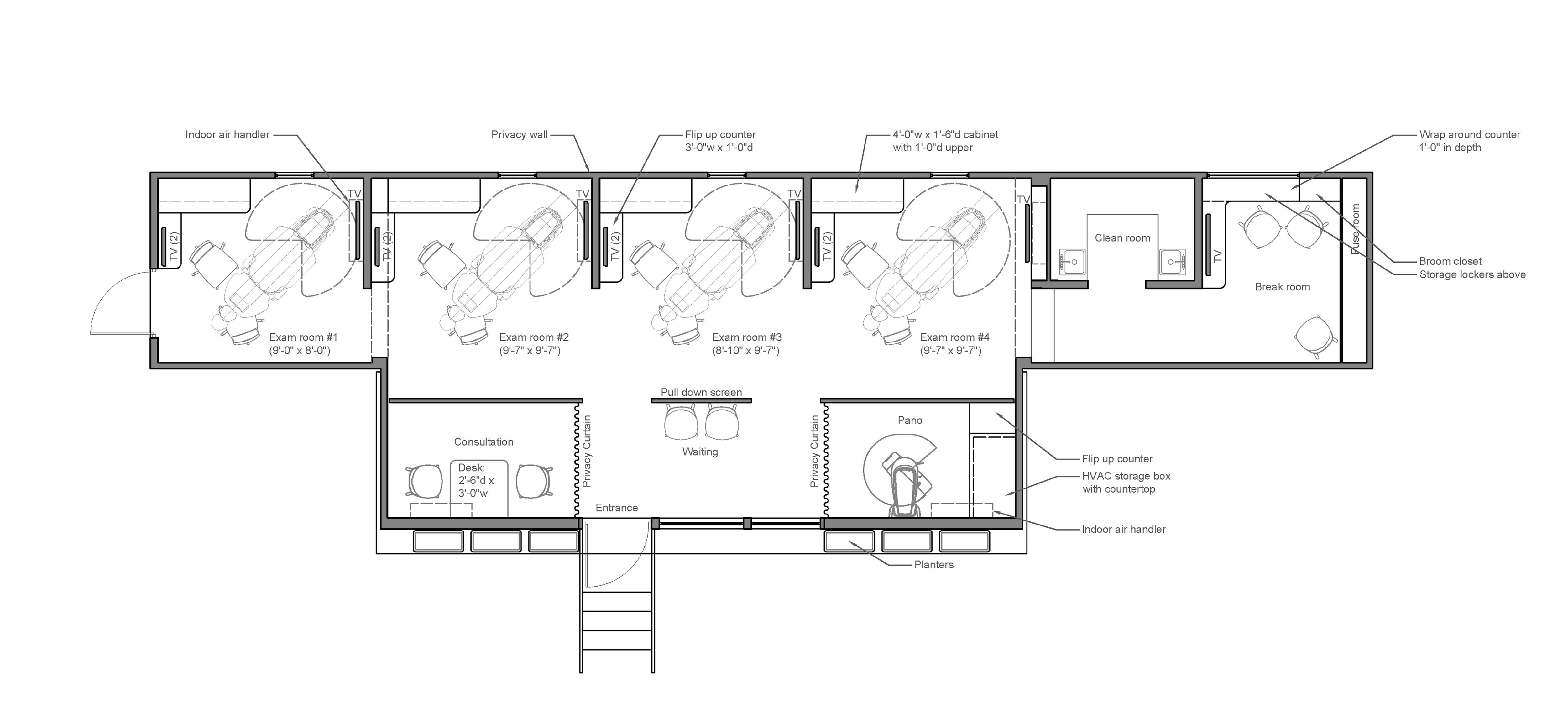
Lydian Dental Mobile Tour

You may also like . . .

TMobile Experiential Concepts
Nikola Motors
Polly [Dealer Policy] Experiential Concept
Surfside
WynnBet Mobile Tour
Capital One
Zwilling Mobile Tour
Milwaukee Tool Experiential Concepts
Coca-Cola FIFA 2022 Hospitality
Robotics Competition
↑Back to Top