Experiential
Architectural
About / Contact
Archetype Design Co.
Experiential
Architectural
About / Contact

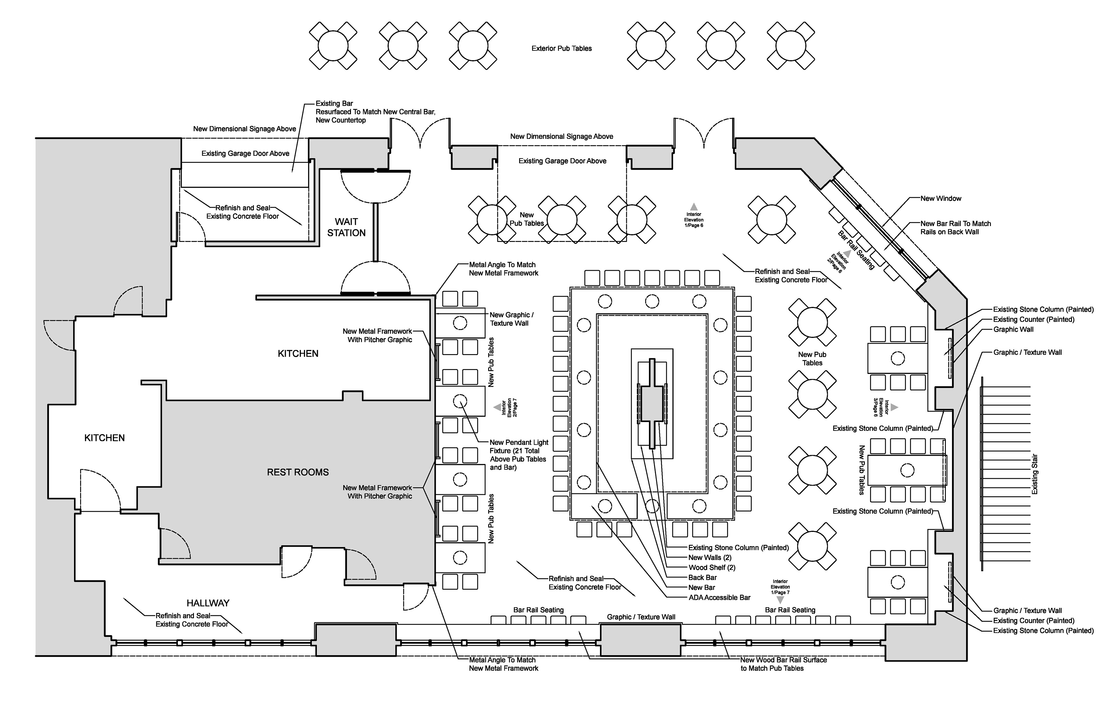
Miller Lite Pitcher's Pub

You may also like . . .

Capital One
Hyland Naturals
Surfside
Coca-Cola FIFA 2022 Hospitality
WynnBet Mobile Tour
Visa - Rio Hospitality
Konica Minolta Experiential Concept
Dr. Squatch
Robotics Competition
TMobile Experiential Concepts
↑Back to Top